architektonická studie | agrofarma | září 2023 | Jiřetín pod Jedlovou
Autoři a spoluautoři:
Dominik Tomáš Petr, Michael Švec, Michaela Mrázová
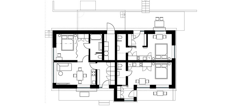
Do Lužických hor na rozlehlý pozemek bezmála 40 000 m2 navrhujeme agroturistickou farmu zaměřenou na chov jednoho z nejstaršího amerického koňského plemene Quarter horse. Na farmě bude možné krátkodobé ubytování v penzionu. Ve stájích se počítá s chovem 8 koní. V klubovně budou probíhat obchodní i přátelská setkání obdivovatelů těchto krásných zvířat.





















