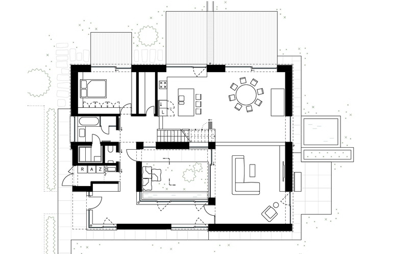
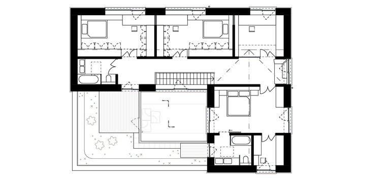
studie novostavby rodinného domu | květen 2023 | 266 m2 | Dobřejovice
Autoři a spoluautoři:
Dominik Tomáš Petr, Michael Švec, Barbora Havelská, Michaela Mrázová, Patrik Domín, Mikuláš Valdman
Dům je navržen s ohledem na přání klienta, aby v něm mohlo šťastně, a především společně, žít hned několik generací. Babička, rodiče, děti a také předci. Formát soužití, který je v poslední individualizované době v našem prostředí spíše vzácností. Naši klienti pochází z Vietnamu, kde lidé v žití pod společnou střechou spatřují krásu a vzájemné obohacení.
























