architektonická studie | obecní knihovna | duben 2025 | obec Rozstání
Autoři a spoluautoři:
Michael Švec, Dominik Tomáš Petr, Martin Sýkorský, Barbora Havelská
V květnu roku 2024 jsme byli osloveni starostkou paní starostkou malé obce poblíž Moravské Třebové ohledně adaptace myslivny na novou klubovnu. Součástí měla být také knihovna, noclehárna pro skauty, apartmán a malá myslivna, v níž by mohli myslivci uskladnit zvěř po honitbě. Po prověření kapacit, zaměření domu a sondáži stávajících konstrukcí bylo zadání upraveno a obec se shodla na novostavbě.
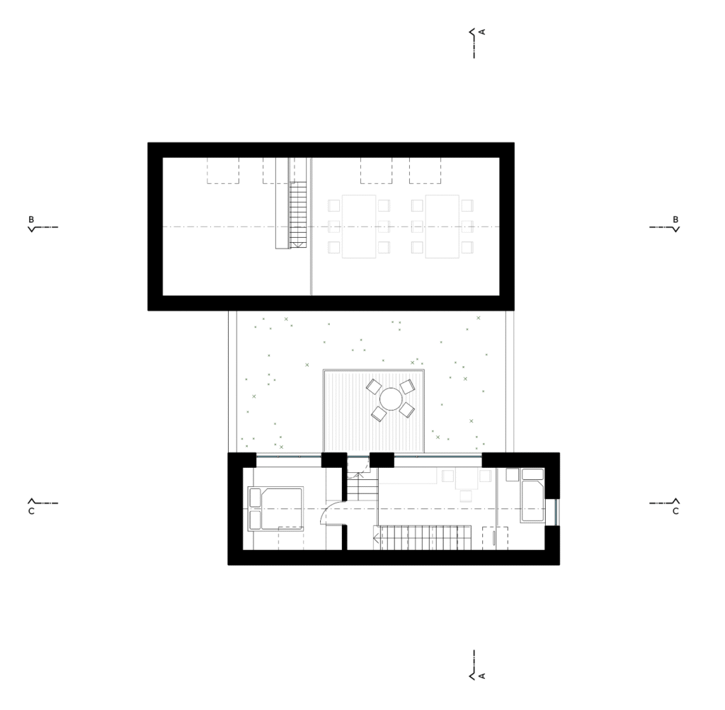
V době, kdy knihovna je otevřená, funguje prostor klubovny jako studovna. Oba prostory jsou vzájemně maximálně propojené posuvnými dveřmi, v prostoru klubovny/studovny jsou umístěny šatní skříně a kuchyňka pro zaměstnance. Na večer, kdy se knihovna uzavře, může být klubovna nadále používána pro setkání místních spolků.
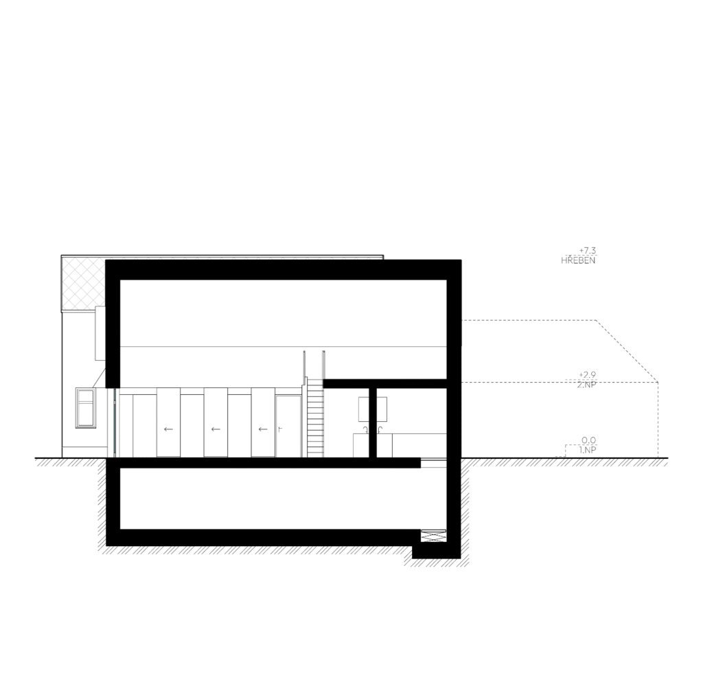
Základní hmotové řešení se inspiruje v místním archetypu dvouštítového řešení. Tyto dvě sedlové střechy zároveň rámují výhled na nedaleký chlum 456. Mezi nimi je hmota vyplněna nízkým kvádrem s plochou střechou.
přízemí
Do jižní útlé a převýšené budovy byl vmístěn dvoupodlažní apartmán. Severní halový prostor je věnován klubovně s kuchyní, zadní část myslivně. Tento prostor má zároveň nejlepší návaznost na severní travnatou plochu, na které je možné za dobrého počasí konat slavnosti a klubovnu použít jako zázemí. Doprostřed obou štítů byla vložena knihovna.
východní pohled
Funkcím odpovídají i fasády. Veřejnou část průčelí definuje ostrý rytmus oken a pilířů. Hlavní vstupy veřejných prostor jsou akcentovány drobnými stříškami, závětřím. Apartmánová část má fasády rozvolněné.